Egy fiatal nő otthonát teljesen átalakították, mindössze 29 négyzetméteren valósították meg az összes szükséges funkciót. Az egyetlen szobában nem csak a nappali, hanem a háló is helyet kapott. Az innovatív belsőépítészeti megoldásoknak köszönhetően a lakás minden szeglete funkcionális.
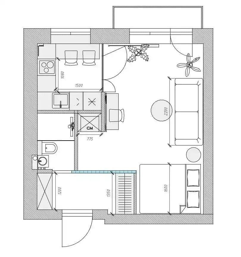
A lakás alaprajzát teljesen megváltoztatták az átépítés során. A korábbi falakat lebontották, helyettük újakat emeltek, így a konyha és a nappali is vizuálisan egy térként jelenik meg. A konyhát egy üvegfal választja el a nappalitól, amely nemcsak praktikus, de stílusos megoldás is.


A modern konyhát U-alakban alakították ki, az ablak előtt pedig egy bárpult kapott helyet, amely a konyhai pult folytatásaként szolgál. A zöld színnel ellátott étkező, valamint a bárszékek és a látványos „pók” csillár a konyha stílusos elemei.


A nappaliban a falakat fehérre festették, hogy a teret optikailag növeljék. Egy sarokban pihenőhelyet alakítottak ki, amelyet egy karakteres szőnyeg emel ki. A kanapé kinyitható, így vendégek fogadására is alkalmas. A falak mentén fagerenda fut, a kanapé fölött pedig egy fekete fémkeretes polcrendszer található, amely harmonizál a többi sötét elemmel.


A kanapéval szemben található a dolgozósarok és a televízió is, így ez a fal több funkciót is ellát. A térkihasználás optimális, hiszen a munkaterület és a szórakozás egy helyen található.


A hálórész a szoba belső, védettebb részén kapott helyet. A zöldre festett falak segítenek elválasztani a hálót a nappali résztől. Az ágy fém fejtámlával illeszkedik a meglévő fülkébe, míg a fejtámla fölé két dizájnos lámpa került.


A fürdőszobában a zuhanyzó és a mosdó körüli részt zöld csempével borították, míg a padlón és a többi falon szürke burkolat található. A tárolási lehetőségeket ügyesen kihasználták, beépített szekrényekkel és polcokkal.



