Egy különleges japán lakást mutatunk be, amelynek elrendezése első pillantásra szokatlannak tűnhet. Kétszintes kialakítása és egyedi megoldásai miatt érdemes részletesen megvizsgálni.
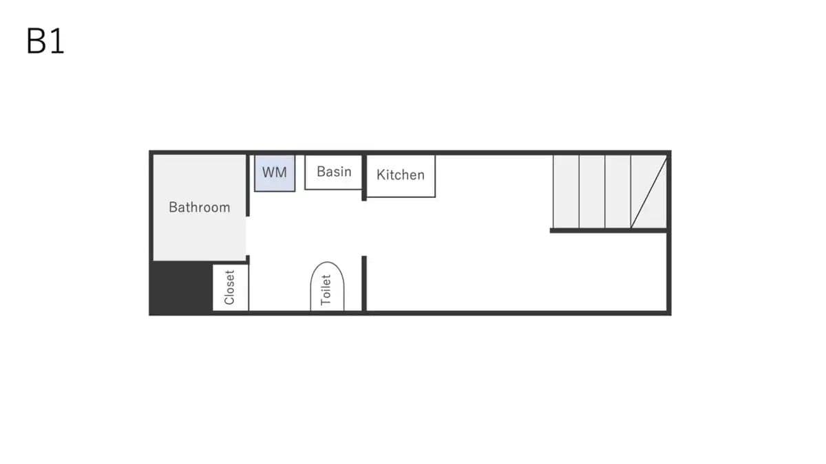
A lakás az épület földszintjén és az alatta lévő szinten található, mely kívülről impozáns, bár a homlokzaton található "blokkok" inkább csak dekorációs célokat szolgálnak. Az alábbi képen megtekintheted a földszinti alaprajzot.

A bejárati ajtó mellett található teret, amely első látásra előszobának tűnik, lakószobának nevezik. Bár ez furcsának tűnik, a lakás egyetlen sarka sem igazán felel meg a lakótér kifejezésnek.


Az alsó szintre való lejutás a bejárati ajtó melletti lépcsőn keresztül történik, amely a konyhához és a fürdőszobához vezet.

A mínusz egyedik szinten található konyha és fürdőszoba meglepően jól néz ki, annak ellenére, hogy pincehelyiségről van szó.


Ez az elrendezés talán elsőre nem tűnik problémásnak, de ha jobban belegondolsz, a lakás használata kissé körülményes lehet. A nappaliba belépve, ha valaki a fürdőszobába vagy a konyhába szeretne menni, át kell haladnia az egész lakáson. Ez a megoldás nem a legpraktikusabb, és a tervezés során több lehetőséget is ki lehetett volna használni.


Te hogy látod ezt a különleges lakást? Oszd meg velünk gondolataidat komment formájában!